Bedrijfspand Kooi Makkum
Kooi Makkum is een moderne jachtwerf die jachten bouwt van de hoogste kwaliteit. Ze bouwen aluminium custom-built zeiljachten, met een houten afwerking. Het voormalige pand was geen affiche van het bedrijf. Een eenvoudige loods met kleine ramen en kunststof deuren werkte afschrikwekkend. De werkvertrekken waren donker en de entreehal had weinig allure. Achterbosch Architectuur is gevraagd om hier wat aan te doen.
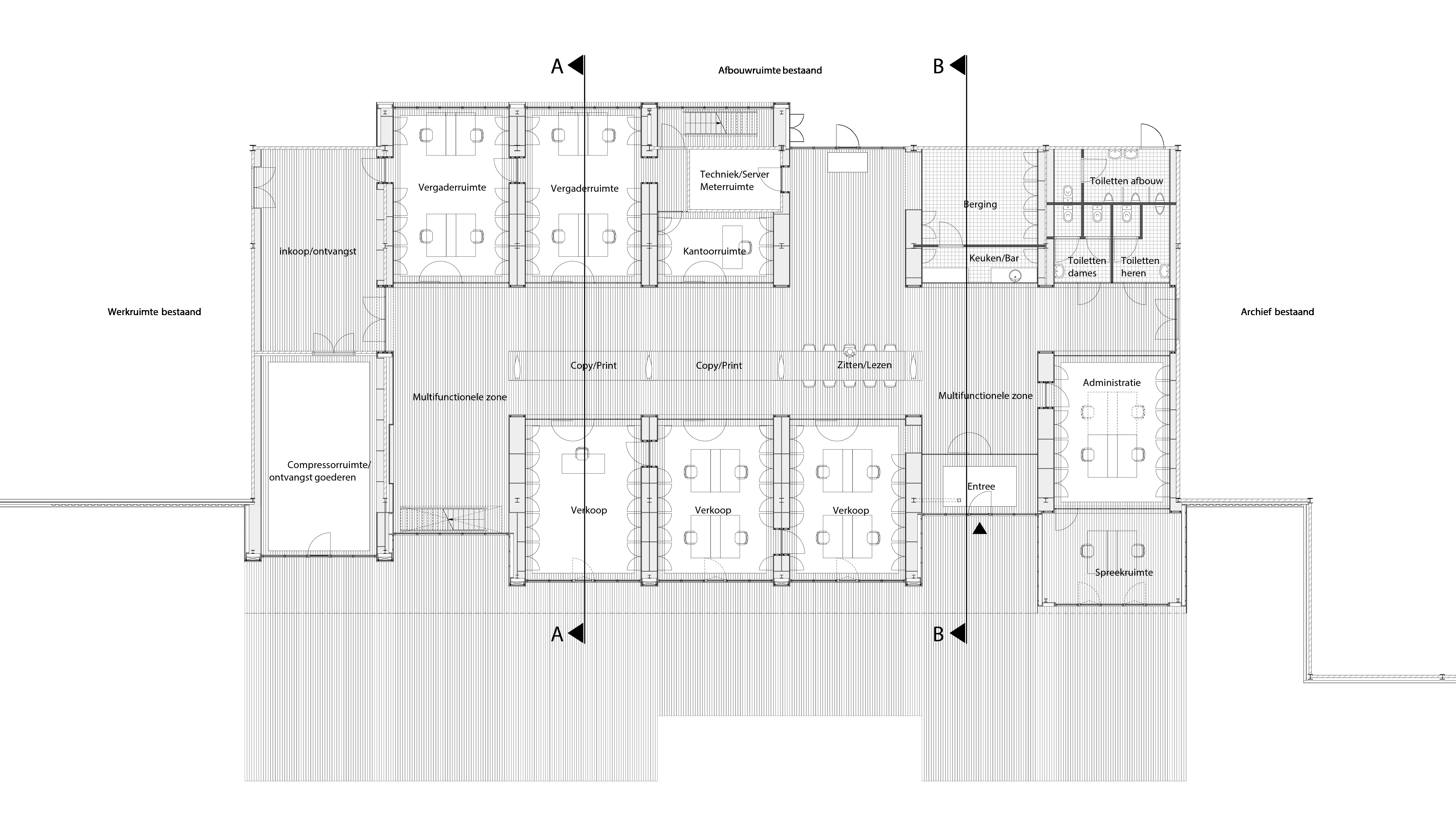
We hebben een deel van de loods intact gelaten, waar deze nog goed functioneerde. Alleen het kantoor heeft een transformatie ondergaan en op de verdieping is een vergaderruimte toegevoegd met uitzicht over een natuurgebied. De volledige gevel, ter breedte van de kantoorvleugel, is gesloopt. Een nieuw volume is in de bestaande massa ‘geschoven’.
Het interieur is volledig ingericht met open werkplekken. Dit geeft een maximale flexibiliteit naar de toekomst en daglicht wordt maximaal benut tot diep in de vertrekken. Een grote luifel markeert de entree en voorkomt hinderlijk zonlicht op de werkplekken. Het resultaat is een overzichtelijk interieur. Iedere werknemer kan contact met elkaar hebben. Bezoekers worden nu in een open lichte ruimte verwelkomd.
Er is gebruik gemaakt van de materialen waarmee Kooi het liefste werkt: aluminium en hout. Hout vormt de bekleding van het nieuwe interieur, terwijl open en gesloten aluminium lamellen het gevelbeeld bepalen. De houten vloer loopt als een steiger door naar buiten en vormt het voorplein. Houten kasten scheiden de werkplekken van elkaar. Door deze buiten de gevel te steken, wordt de hoofdstructuur van het gebouw afleesbaar aan de buitenzijde. Hierdoor wordt een prettige menselijke maat ervaren. Aluminium lamellen lopen voor een deel voor de oude gevel langs op de verdieping om een evenwichtig beeld te genereren. Hier loopt het materiaal pragmatisch voor de bestaande kozijnen langs en wordt daglichtsturend en zonwerend ingezet.
Nominatie
- Vredeman de Vriesprijs 2012
Opdrachtgever
- Kooi Makkum/K&M Yachtbuilders
Locatie
- Makkum
Realisatie
- 2011







