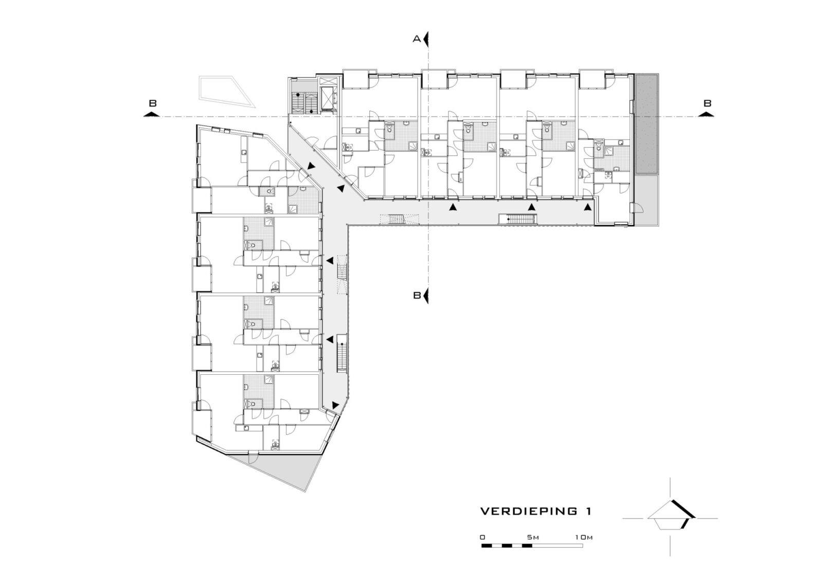
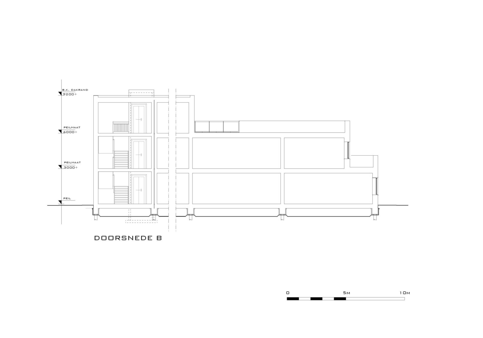
Boarn woningen
Naar aanleiding van ons onderzoek naar typische kwaliteiten van het dorp Aldeboarn zijn spelregels opgesteld voor een nieuw plan. Deze spelregels vormen de basis voor een kwaliteitsdocument voor dit nieuw te bouwen project, bestaande uit 20 appartementen en 9 nieuwe woningen. Dit project wordt gebouwd langs het water van de Boarn. Op deze locatie was voorheen een oude zuivelfabriek gevestigd.
Het niveau van de woning wordt in dit project niet los gezien van het geheel, zo een dorp ook functioneert. Verankeringsingrepen met de plek worden hier ingezet als middel om het nieuwe project in individuele delen, en tegelijk als geheel te beschouwen.
De tijd van het nieuw te bouwen project moet voelbaar zijn maar dient wel voort te borduren op de historie van het dorp, alleen zonder classicistisch teruggrijpen.
De pluriformiteit van de individuele woningen is een rechtstreekse verwijzing naar hoe Aldeboarn is opgebouwd. Belangrijk is hierop voort te borduren door te bouwen en detailleren op een manier die eigentijds is, woningen aanpassen aan de wensen van het individu, en tevens de dorpse gemeenschappelijkheid niet uit het oog te verliezen dmv. een gedegen inpassing.
De relatie van de individuele woning met het openbare gebied wordt verkregen door middel van een uitwisseling van materialen, van openbaar gebied tot gevel. Het gemeenschappelijke groen komt terug in groene zones in delen van het privé-groen. Dit is een middel om de typisch dorpse landschappelijkheid kracht bij te zetten en woningen aan tuinen en aan openbaar groen te verbinden.
Individuele expressie wordt aangemoedigd en er wordt een gevoel van eigenheid gegenereerd, maar wel op een gecoördineerde manier. De appartementen krijgen echter een sterk ontworpen industrieel karakter, een verwijzing naar het verleden.
Opdrachtgever
- WoonFriesland
Locatie
- Aldeboarn
Realisatie
- 2007
Fotograaf
- Peter van der Knoop






