Bolwerk woningen
Deze opgave voor een complex van 22 woningen en drie gezamenlijke woonkamers is geïnitieerd door Philadelphia Zorg, een stichting die mensen met een verstandelijke beperking ondersteunt en begeleidt.
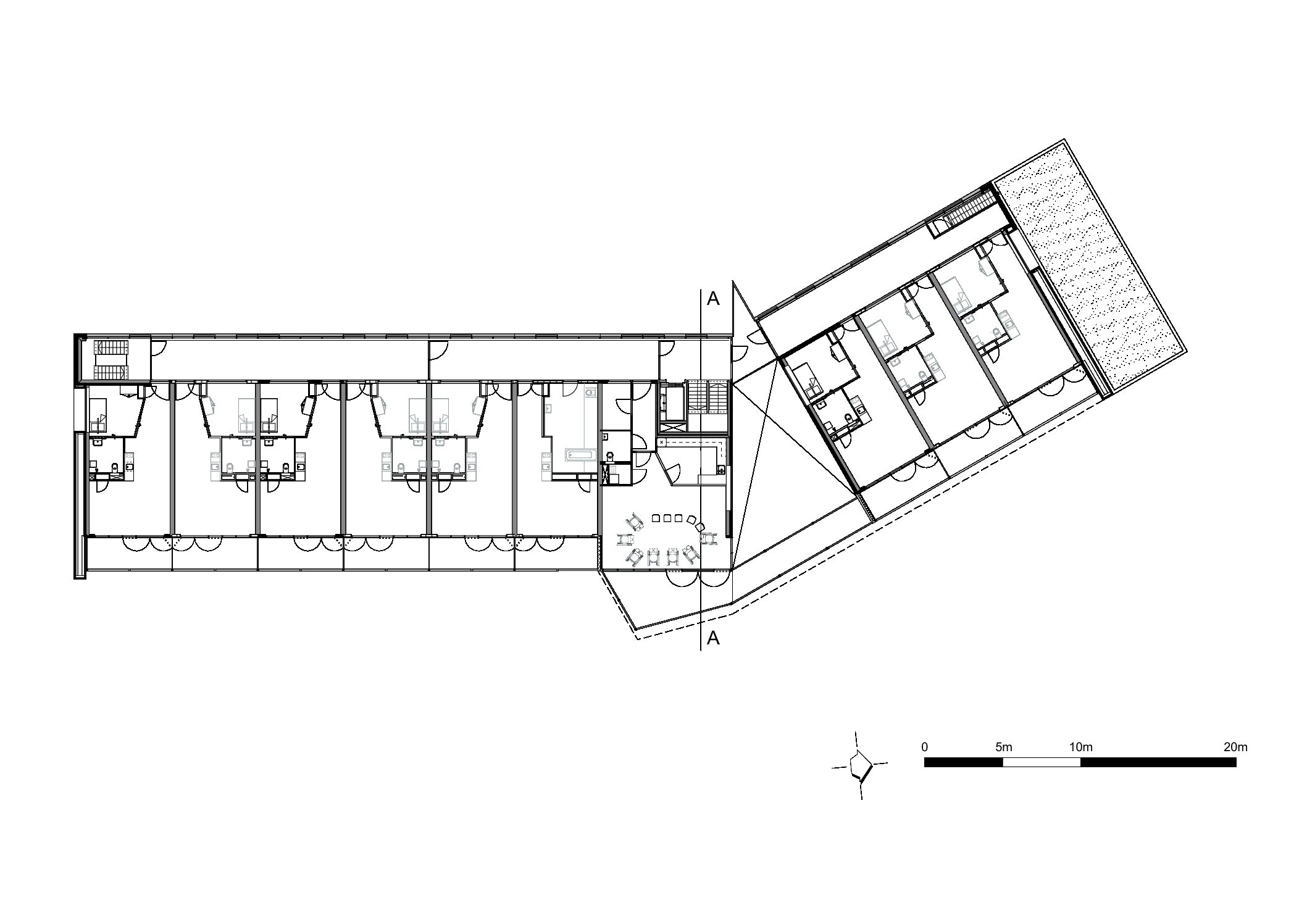
De ondersteuning varieert van enkele uren begeleiding per week tot dagelijkse intensieve zorg. Elke wooneenheid is voorzien van een badkamer, keuken en buitenruimte.
Het woonblok is gesitueerd direct achter de oorspronkelijke “bolwerken” die rondom de oude binnenstad van Bolsward lopen. De hoofdvorm van het woonblok knikt mee met de autonome vorm van het bolwerk. Door de vertrapping die is aangebracht in het bouwvolume, volgt het gebouw het hoogteverschil van het bolwerk. Het gebouw vormt zo een sterk begrijpelijk onderdeel van de context, met twee keer een verspringing van een woonlaag. Daar waar het bolwerk enkele meters hoog is, zijn de bergingen gesitueerd. Hierboven bevinden zich de woonkamers met balkons die over de oude verdedigingswal met wandelroute uitkijken. Men woont tussen het groen van de bomen van dit parkachtige wandelgebied.
Het gebouw heeft ook een stadzijde die een ander karakter heeft en robuuster is gematerialiseerd. De woningen en de centrale woonkamers zijn georiënteerd op de beschutte parkzijde van het bolwerk, terwijl de brede verkeersruimte zich aan de stedelijke kant van het complex bevindt; de kant waar ontmoeting ruimte krijgt. De groene omgeving biedt de nodige rust. Hier is gekozen voor een passende houten gevelbekleding. De houten balkons hangen als “hangmatten” in het groen van het parkachtige gebied.
Aan de stadszijde van het gebouw bevindt zich de hoofdentree. De entrees van de woningen zijn bereikbaar vanuit de centrale corridor die een open uitstraling heeft en georiënteerd is op de binnenstad. Het hout van de parkzijde komt afwisselend terug in de verschuifbare houten zonneschermen die aan de gevel bevestigd zijn. De stedelijke zijde van het woongebouw biedt een rustig beeld door de betonnen borstweringen die de horizontaliteit van het gebouw benadrukken. Een allesomvattend kader, uitgevoerd in natuurstenen leien, verbindt de stadskant met de parkzijde en accentueert de vertrappende beweging van het blok. Daarnaast refereert de toegepaste gemêleerde leisteen aan de Martinikerk om de hoek, die een prominente plek inneemt de binnenstad van Bolsward.
Opdrachtgever
- Woningcorporatie Welkom/Nieuw Wonen
Locatie
- Bolsward, Friesland
Realisatie
- 2006
Fotografie
- Peter van der Knoop









