Brugbedieningscentrum It Swettehûs (GEAR)
Circulair en energieneutraal
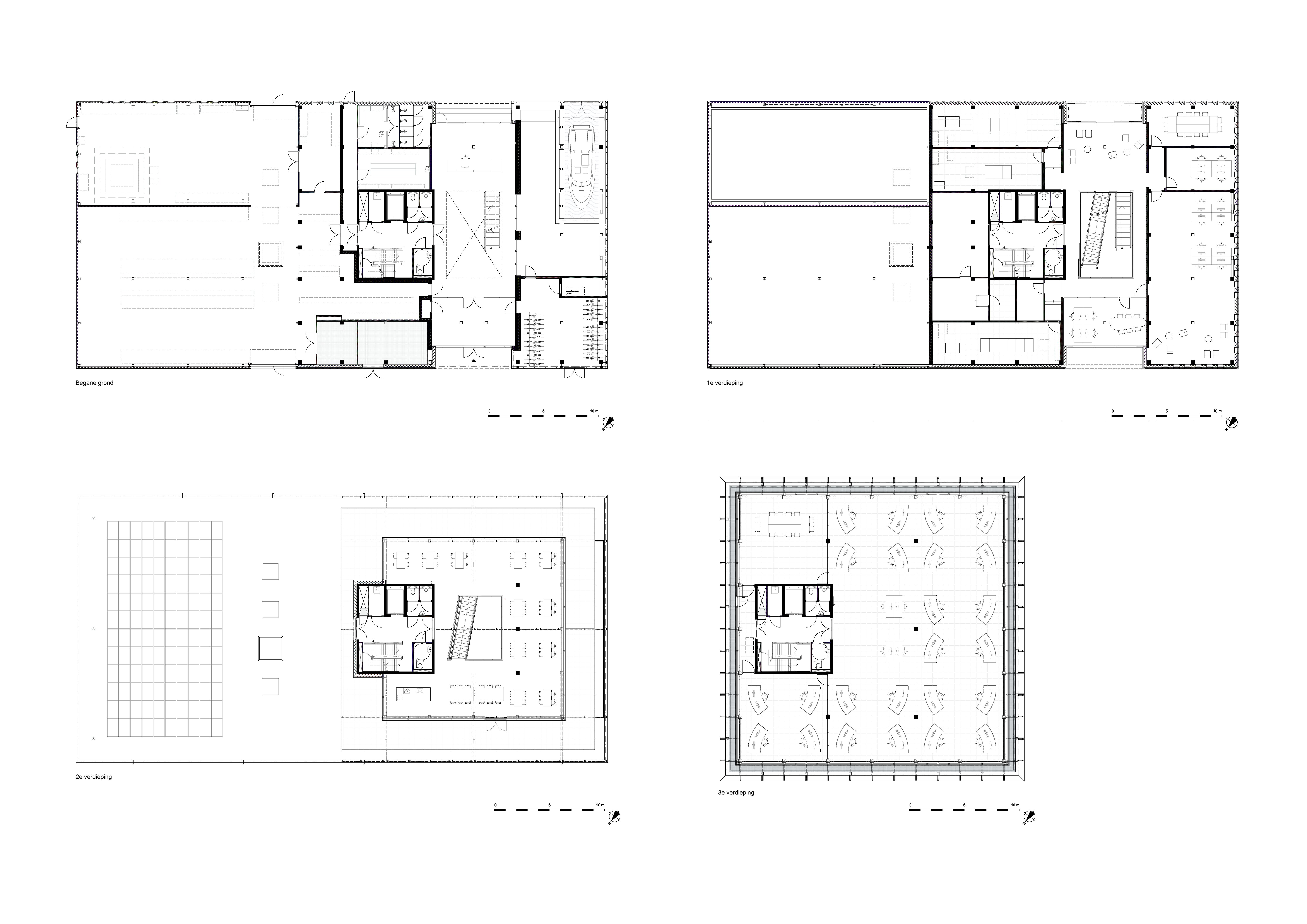
Het aan de westkant van Leeuwarden gebouwde Swettehûs is de nieuwe centrale voor de bediening van circa 40 bruggen in Fryslân. Naast een werkplek voor brugbedienaars is het gebouw en terrein de uitvalsbasis voor provinciale vaarwegbeheer en de technische dienst voor onderhoud van bruggen en sluizen.
De provinsje Fryslân heeft met de bouw van It Swettehûs een state-of-the-art voorbeeldproject gerealiseerd. In 2025 wil de provincie de meest gunstige ontwikkelregio van Nederland zijn op het gebied van circulaire economie. Speerpunten van de nieuwbouw zijn; gebruik van 100% herbruikbare grondstoffen, flexibel en adaptief, zelfvoorzienend, energiek en gezond en een bedrijfsterrein met volop biodiversiteit. Het Swettehûs is een landmark voor de westelijke entree van Leeuwarden, zowel aan de autoweg, als aan de vaar- en spoorweg.
It Swettehûs is een van de meest circulaire gebouwen van Fryslân.
Gedeputeerde Avine Fokkens-Kelder is heel enthousiast over de circulaire maatregelen: “Fantastisch dat we met dit ontwerp onze ambitie om koploper te worden in de circulaire economie zichtbaar kunnen maken. De kennisontwikkeling is enorm en het is een prachtig gebouw om in te werken”.
Het ontwerpteam voor de nieuwbouw van dit circulair brugbedieningscentrum bestaat uit GEAR architectencoöperatie, Bouwgroep Dijkstra Draisma, Sweco, ITBB, de Waard en Donkergroen, in opdracht van de provincie Fryslân.
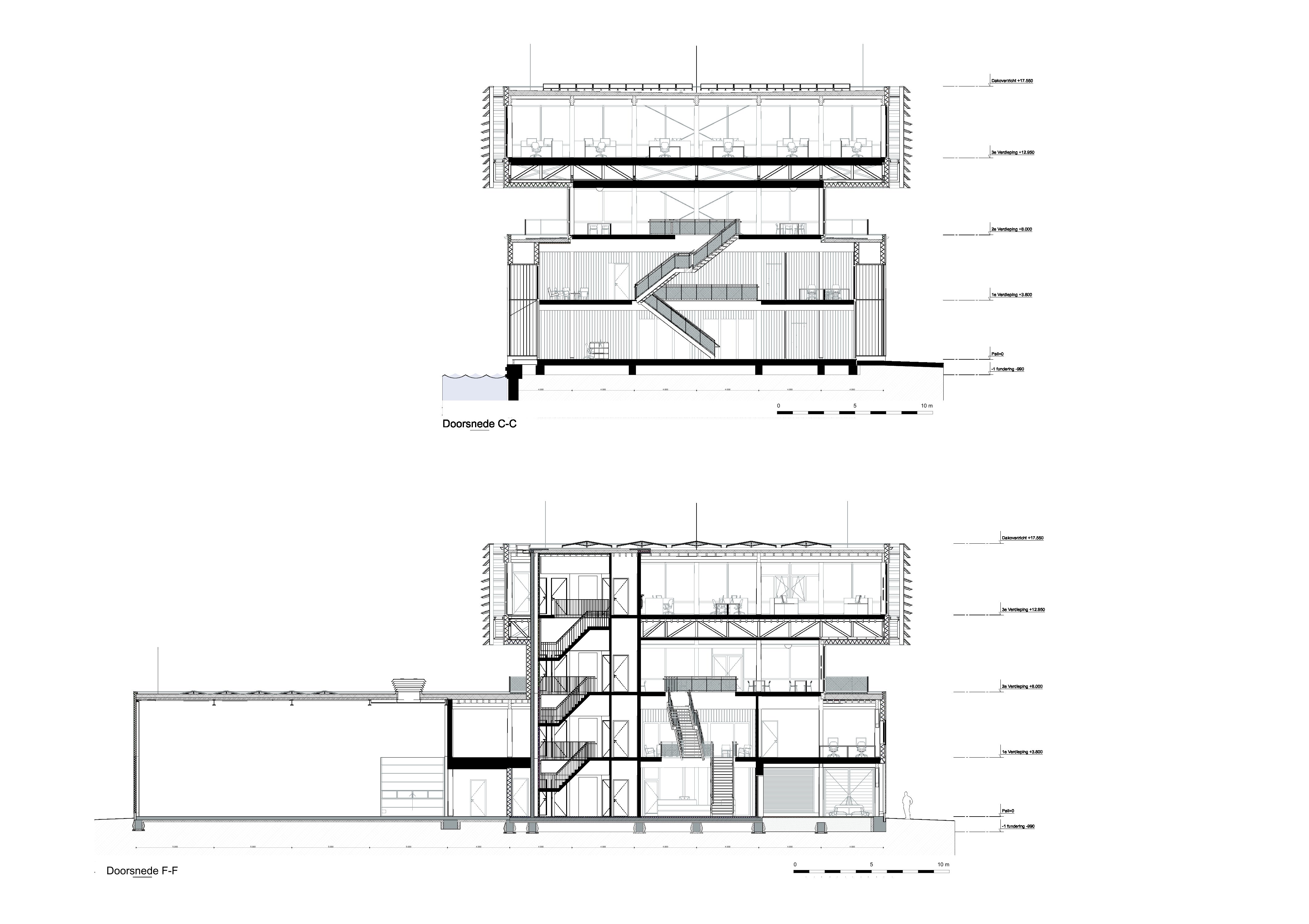
It Swettehûs is een statig en duurzaam gebouw. Het ontwerp sluit perfect aan op de hoge ambities van opdrachtgever Provincie Fryslân op gebied van circulaire economie. Er is daarom veel bouwmateriaal hergebruikt. Gebruikte Basralocus meerpalen zijn toegepast voor de constructie, de gevel en de plafonds. Dit zeer sterke hardhout onderstreept het nautische karakter van het gebouw. Damwanden uit het Van Harinxmakanaal kregen een tweede leven in de haven bij het Swettehûs.
Innovatieve warmtewisselaars in het Van Harinxmakanaal onttrekken warmte / koude uit het oppervlaktewater en zorgen daarmee voor verwarming / koeling van het gebouw. Warmte uit de serverruimte van de bediencentrale wordt tijdelijk opgeslagen en kan op een later moment gebruikt worden. Zonnepanelen in het talud leveren voldoende energie voor het gebouw, het openen / sluiten van de fietsbrug Ritsumasyl en voor de laadpalen voor elektrische auto’s.
Nominaties
- Architectenweb Kantoorgebouw van het jaar 2022
- Vredeman de Vriesprijs 2023
Samenwerking/Co-makers
- GEAR, Sweco, Donker Design, ITBB Techniek, De Waard
Opdrachtgever
- Provincie Friesland
Locatie
- Leeuwarden, Friesland
Projectarchitecten
- Bart Zantman en Doeke van Wieren
Ontwerpteam
- Frank Reitsma, Kees Szarzynski en Wytske Bakker
Realisatie
- 2022
Hoofdaannemer
- Bouwgroep Dijkstra Draisma
Fotograaf
- Gerard van Beek
Oppervlakte
- 2.500 m2
Publicaties
- september 2022- Bouwen in het Noorden

















