Energiecampus
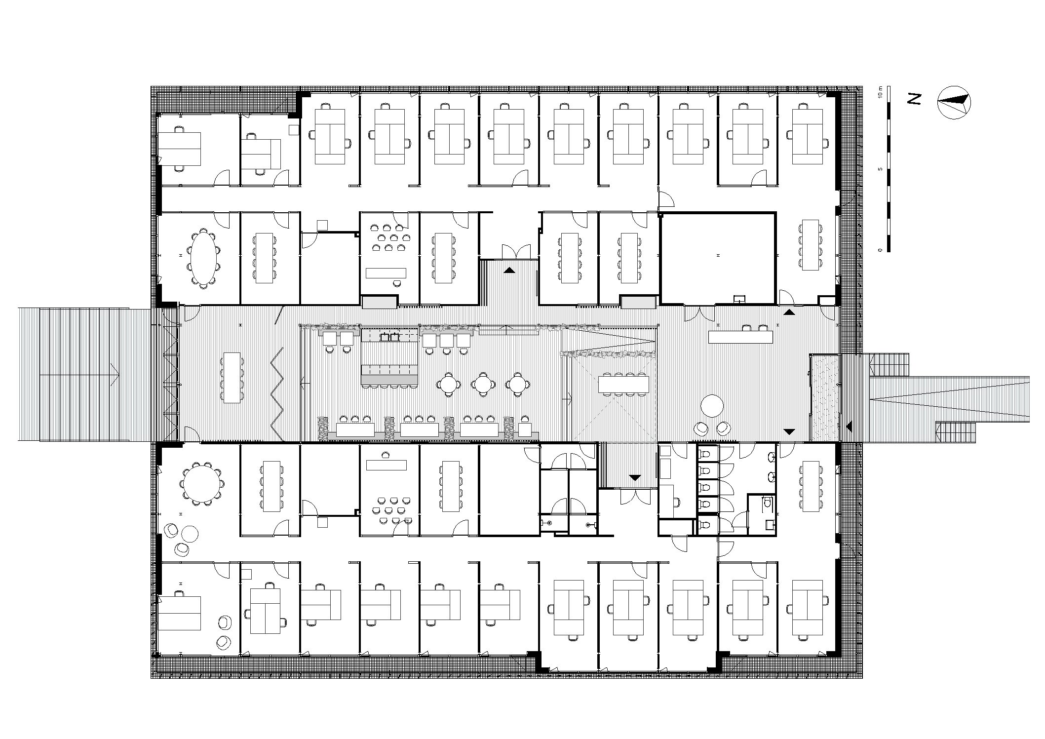
In opdracht van Ekwadraat en Oosterhof Holman heeft Achterbosch Architecten het ontwerp gemaakt voor een duurzaam en circulair kantoorgebouw op de voormalige vuilstort “Schenkenschans”.
Het kenniscentrum heeft een unieke, prominente plek binnen de Energie Campus Leeuwarden. De meest noordelijke punt van de ‘bult’ is zowel vanwege het alzijdige uitzicht als voor de zichtbaarheid vanuit de verre omtrek de perfecte plek voor dit opvallende gebouw.
De afvalberg vormt niet alleen een markante plek: de instabiele ondergrond maakt een innovatieve, lichte en doelmatige bebouwing noodzakelijk. Daarom is het gebouw op 108 individueel verstelbare kolommen geplaatst. Hiermee kunnen eventuele verzakkingen tot dertig centimeter opgevangen worden in de komende 50 jaar.
Om de belasting op het milieu zo laag mogelijk te houden, zowel tijdens de bouw als gedurende het gebruik en ook na afloop van de levensduur van het volledig remontabele gebouw, heeft een zorgvuldige keuze van toegepaste materialen plaatsgevonden met veel aandacht voor circulariteit. Wat betreft de energiehuishouding is het gebouw geheel zelfvoorzienend door het gebruik van zonnepanelen en luchtwarmtepompen.

Samenwerking
- Friso Bouwgroep
Opdrachtgever
- Ekwadraat
- Oosterhof Holman
Locatie
- Leeuwarden, Friesland
Realisatie
- 2019
Fotograaf
- Tristan Fopma












