Kanaalwoning
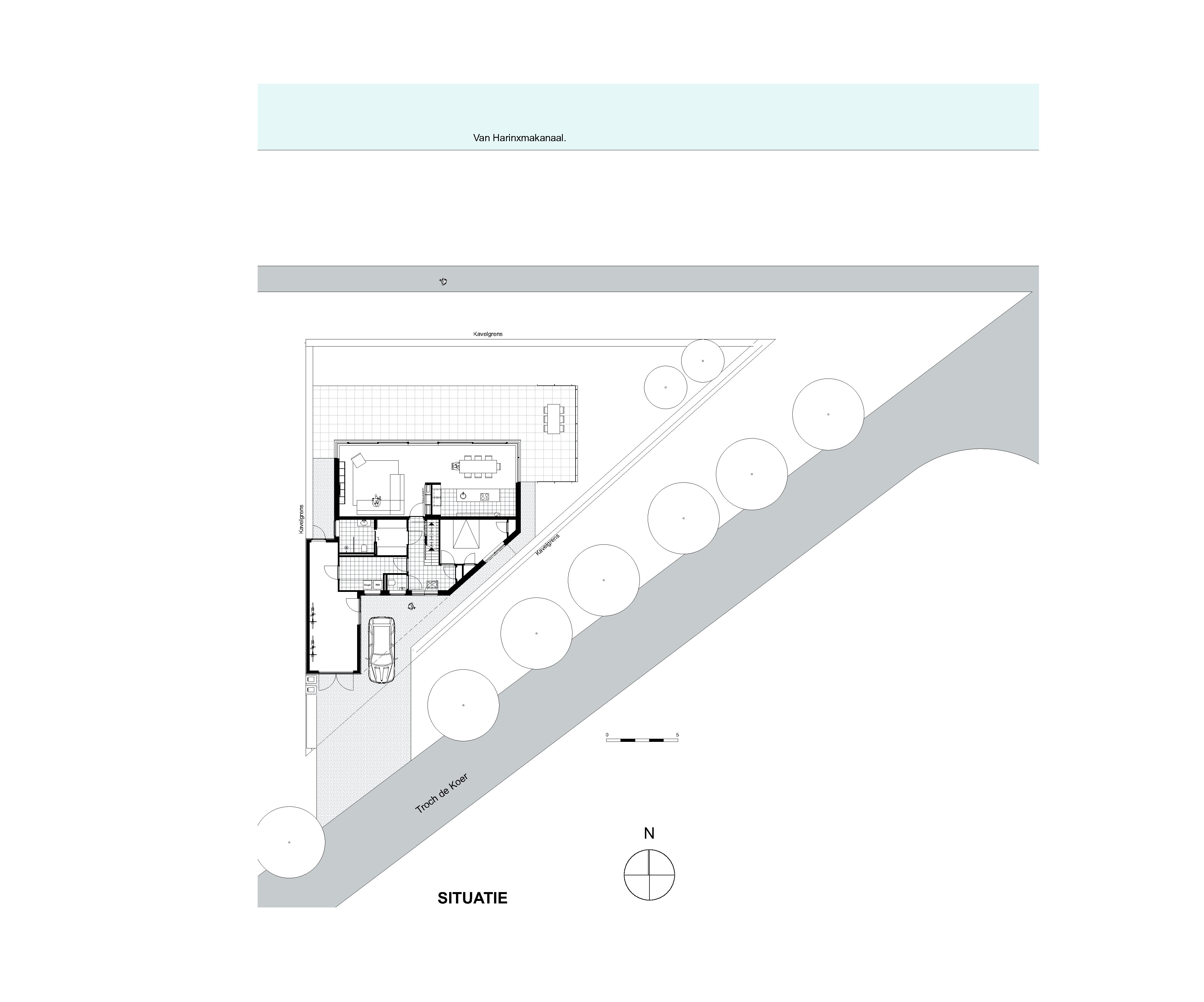
De woning is fraai gelegen langs het Van Harinxmakanaal in Deinum. De hoofdvorm van de woning is eenvoudig en markant en voorzien van een zadeldak. De locatie echter biedt mogelijkheden en kansen voor een fraai terras, een groots uitzicht op het kanaal, en de woning ook te verbinden met een garage/carport. Hierdoor meandert de woning op de locatie, en vervormt daarmee in de plattegrond en de gevels, daar waar dat gewenst is. Hierdoor ontstaat een unieke vorm, heel locatie specifiek en toch vertrouwd en herkenbaar.
De woning is duurzaam en grotendeels met biobased materialen ontworpen. De gevels kenmerken zich door een zorgvuldig ontworpen spel van verticale houten planken, en karakteristiek metselwerk. De openheid naar het kanaal aan de noordzijde staat in contrast met de zuidzijde waar de gevels betrekkelijk gesloten zijn gebleven vanwege de privacy. Het interieur is integraal door ons mee ontworpen en in balans met de woning zorgvuldig vormgegeven in duurzame tactiele materialen en prachtige kleurstellingen.
Opdrachtgever
- Particulier
Locatie
- Deinum
Realisatie
- 2019
Fotograaf
- Gerard van Beek










