Prachtig gelegen in een rustiek deel van Bergen, Noord-Holland valt de woning met name op door haar grote archetypische zadel kap van riet. De woning wordt geheel gedragen door houten gevels en is opgetrokken uit biobased materialen. De markante vorm van de rieten kap wordt doorbroken door eigentijdse raamopeningen, modern vormgegeven met een subtiele verwijzing naar de klassieke detaillering van ramen in rieten kappen van bijvoorbeeld boerderijen.
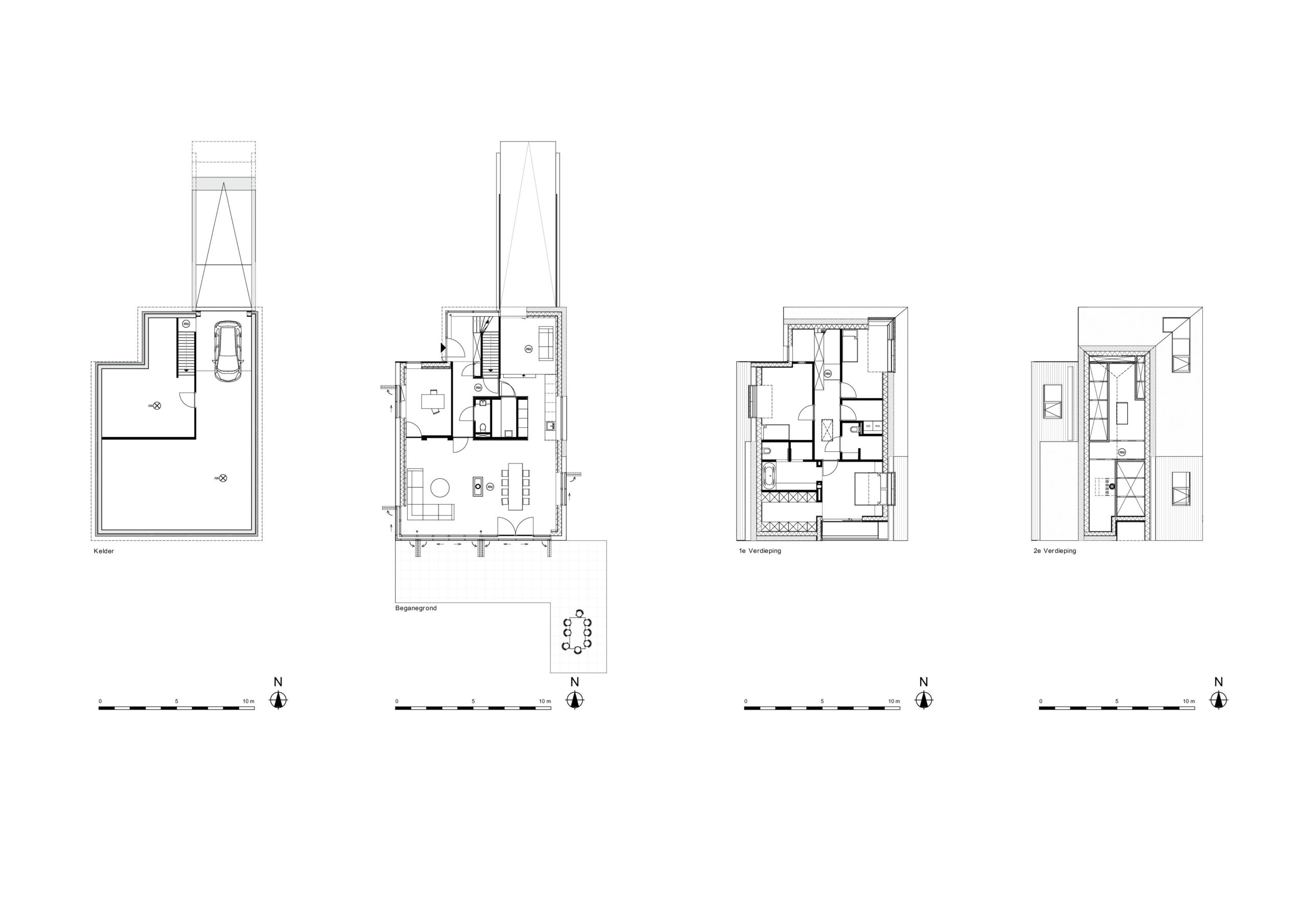
Ook in het door ons zorgvuldige ontworpen interieur zijn de materialen biobased en nagenoeg alles is duurzaam. De gehele woning is onderkelderd, enerzijds ten behoeve van het parkeren van 2 auto’s anderzijds ten behoeve van installaties, een fitnessruimte en een opslagruimte. De open begane grond biedt zowel transparantie als privacy. Door middel van interieurelementen zoals een kast of haard ontstaan er gebakende zones. Verblijfsgebieden zijn met elkaar verbonden door zichtlijnen waardoor de openheid wordt versterkt.












