Renovatie 2e etage Oosterkade 72
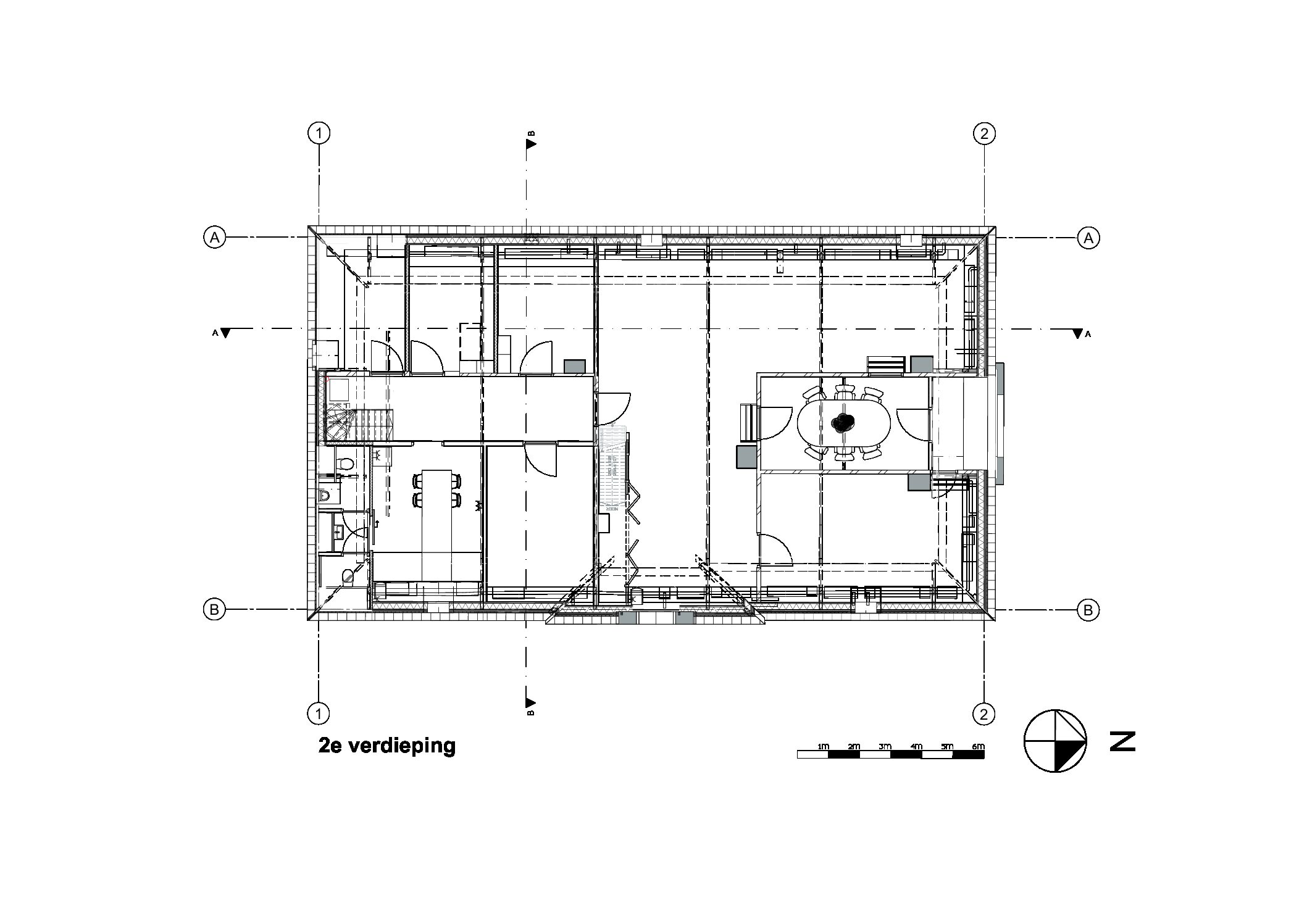
De tweede verdieping van het voormalige Kantonrechtbank aan de Oosterkade 72 te Leeuwarden is recent verbouwd. De eigenaren van het pand hebben samen met Achterbosch Architecten het initiatief genomen om de bestaande zolder te transformeren tot kantoorruimte vanwege de groeiende interne ruimtebehoefte. Het betreft hierbij een Rijksmonument, waardoor het interieur op maat binnen de contouren van het monument moet worden ingepast, waarbij de vluchtroutes in het gebouw maatgevend waren.
De recente renovatie van de tweede verdieping van het pand is duurzaam uitgevoerd. Er is zoveel mogelijk bestaand materiaal hergebruikt en er is gebruik gemaakt van biobased isolatiemateriaal zoals houtvezel en lokaal geteeld vezelhennep. Met deze duurzame keuze wordt niet alleen rekening gehouden met de toekomst van het pand, maar ook met de toekomst van het milieu.
Opdrachtgever
- Haas Holding BV
Locatie
- Leeuwarden
Realisatie
- 2023


