Suderstate Harlingen
Apartments Zuiderhaven Harlingen
Op een prachtige locatie aan de rand van de binnenstad van Harlingen, ligt voor ons een nieuwe opgave. Op deze plek aan de Zuiderhaven staat nu een oude garage met woning, maar ooit was dit een kerkje. Nu moeten hier 6 appartementen komen.
De Zuiderhaven had het karakter van marinehaven. De krijgsvaart bleef echter van minder belang dan de handelsvaart. Talrijke schippers onderhielden beurtvaarten naar de Waddeneilanden, naar alle hoeken van de provincie en naar de Zuiderzeehavens, waarvan Amsterdam de belangrijkste was. Al werd Harlingen in de volgende eeuwen voorbijgestreefd door Amsterdam en Rotterdam, toch bleef Harlingen als kustvaart- en vissershaven met veel voorzieningen en het nieuw gegraven Van Harinxmakanaal van groot economisch belang voor Friesland.
De handel en de rijkdom die dit opleverde is nu nog af te lezen aan de grachtenpanden. Tegenwoordig zijn veel van de oude pakhuizen van toen omgevormd tot woonhuizen. De pakhuizen blijken qua typologie dus vrij flexibel te kunnen beantwoorden aan de nieuwe vraag. Men kiest nu voor Harlingen om haar rust, historie en de nabijheid van de zee.
Wij maken echter van de heersende vraag een nieuwe typologie, die naadloos inpast in het historische straatbeeld. De opgave hier is, bestemmingsplantechnisch, om de cultuurhistorische en ruimtelijk waardevolle bebouwingspatronen te volgen. Het behoud van het straatprofiel is een vereiste, waardoor bestaande bouw- en kapvormen uitgangspunt zijn geworden. Het geheel dient dus in het totale stadsbeeld van de grachtenpanden ingepast te worden, en tegelijkertijd moet het ruimte bieden voor luxe appartementen. Een kruising tussen een pakhuis en woningen moet tot een maatpakhuis leiden voor de toekomstige bewoner, met prachtig uitzicht over de waddenzee.
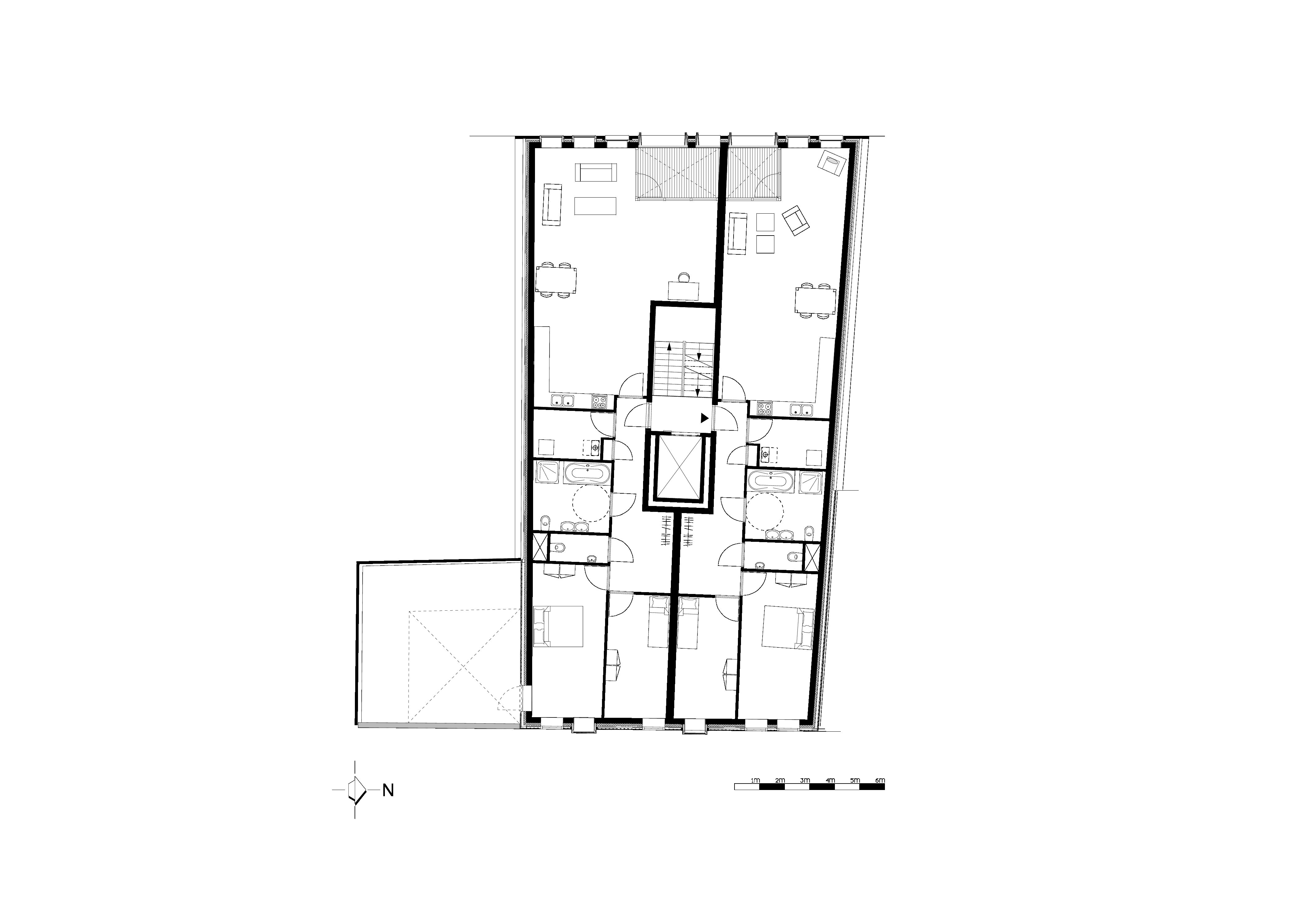
Wat opvalt aan het perceel is de afmeting. Erg diep en breder dan de belendende kavels. Door twee kappen te maken wordt het ritme in de straat niet verstoord.
Het nieuwe programma vraagt om deze tweedeling, ten einde de verhouding tussen hoogte en breedte van het blok in het straatbeeld te laten passen.
De woningen zelf worden hier en daar als op zichzelf staande blokken aan het straatbeeld getoond, door ze als woonpakken uit de archetypische pakhuisvorm te laten schieten. Hierdoor onstaan diverse buitenruimtes, waardoor tegen de gebruikelijke geslotenheid van het pakhuis in, openheid verkregen wordt. Door de woningen in breedte per verdieping te laten verspringen, wordt de diversiteit van het woningaanbod verkregen. Aan de buitenkant grijpen de buitenruimtes in elkaar en wordt de schijnbare tweedeling van gebouw, veroorzaakt door beide kappen, tegengegaan.
Opdrachtgever
- Harom Vastgoed
Locatie
- Zuiderhaven, Harlingen
Realisatie
- 2009
Fotograaf
- Peter van der Knoop





