The Capital
De hoek locatie Zuidergrachtswal-Achter de Hoven is prachtig gelegen aan de rand van het centrum. Beide straten refereren aan een stuk geschiedenis van de stad. Met dit plan wordt het straatbeeld in de ronding van de kavel ‘afgemaakt’. Met een bescheiden esthetiek, proporties en ritmiek wordt aansluiting gevonden bij het beeld van historische panden aan de kade. Een verbijzondering op het dak verwijst naar koepels in de binnenstad, die voor een deel de skyline van Leeuwarden bepalen. Horizontale banden van terug gedetailleerde baksteen wisselen ritmisch af met verticale gevelopeningen, voor optimaal licht en zicht; allen voorzien van een Frans balkon. Het gebouw trapt af om aansluiting te vinden bij de lagere bebouwing in beide straten.
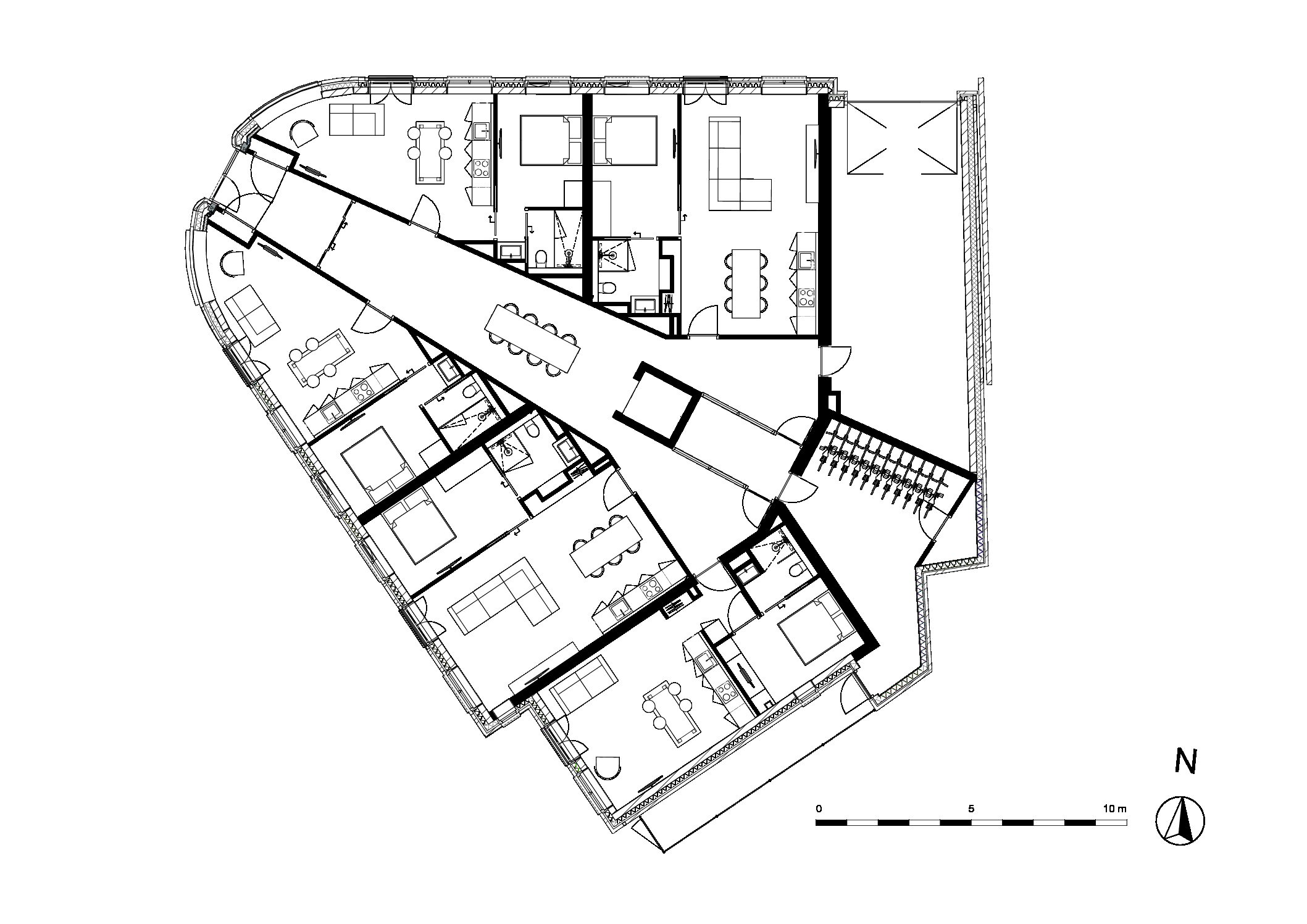
Het plan bestaat uit 17 ‘extended stay’ appartementen, voor mensen die hier om uiteenlopende redenen tijdelijk huisvesting zoeken. De doelgroep is hoofdzakelijk hoger opgeleid, met oog voor de binnenstedelijke dynamiek. De binnenstad is een uitgelezen plek voor deze functie, omdat het programma een aanvulling is op de diversiteit aan woon- en verblijfsvormen in de binnenstad. Het merendeel van de bewoners zal gebruik maken van het openbaar vervoer of de fiets, al zijn er genoeg parkeergelegenheden in de directe nabijheid.
De hoofdontsluiting van de appartementen bevindt zich aan de achterzijde. In de plint, die analogie vertoont met de klassieke ordening van de herenhuizen langs de Willemskade, zal commerciële ruimte komen. De gracht voorziet het gebouw van duurzame koeling en warmte. PV-panelen op het dak leveren elektriciteit.
Opdrachtgever
- Harns Invest
Locatie
- Leeuwarden
Realisatie
- 2021
Aannemer
- Lont
Fotograaf
- Gerard van Beek








