Vlasakkers
In de wijk De Bouwen in Drachten hebben we op eigen initiatief en in opdracht van WoonFriesland een nieuwe invulling ontworpen op de locatie van een voormalige garage.
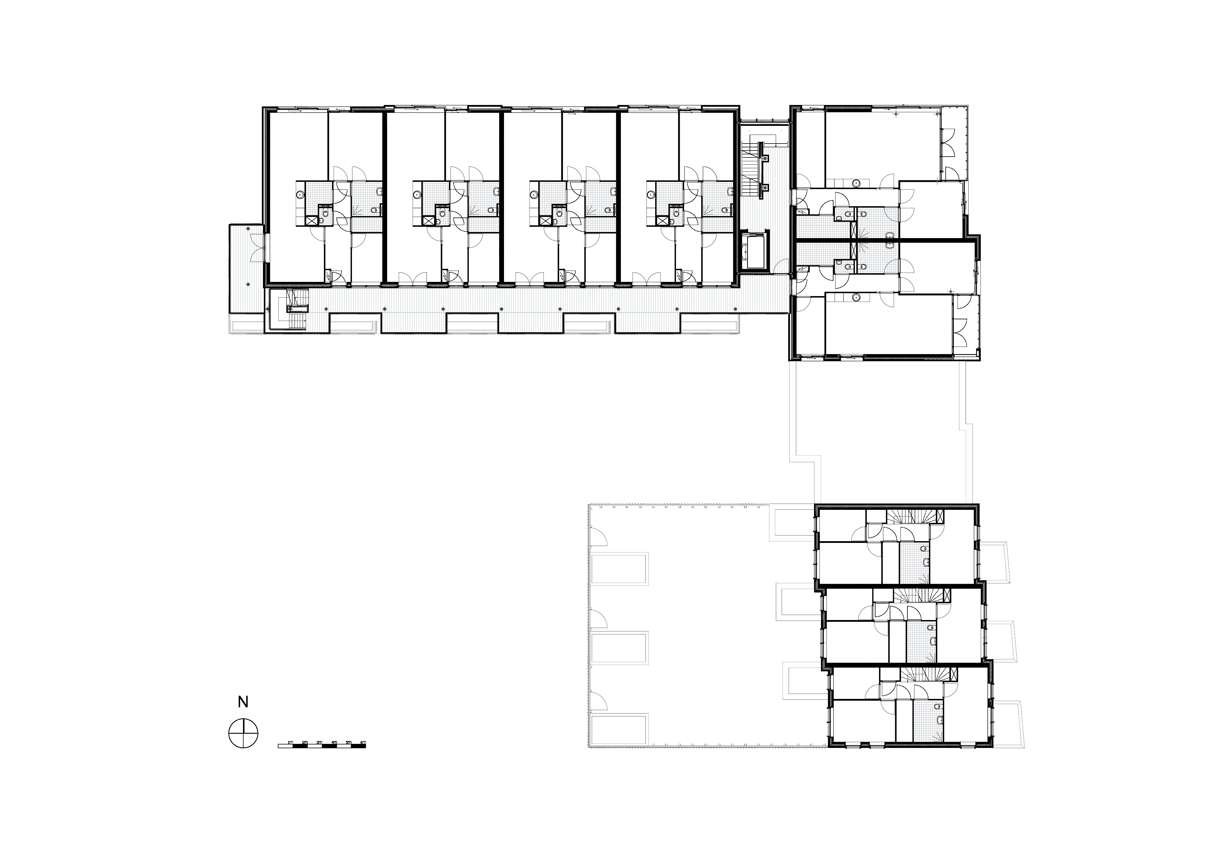
Omwille van de duurzame ontwikkeling is het interieur van het appartement voornamelijk van hout. Aan de ene kant van het appartement bevindt zich een stadspark en aan de andere kant een parkeerplaats. De kant naar het park is meer open en de kant naar de parkeerplaats is de ingang, wat de sociale interactie van de buurt kan bevorderen.
Bij de vormgeving van de achterzijde van de galeriewoningen is goed nagedacht, wat de woonkwaliteit van het achtergebied ten goede komt. Het imago van de achterkant is op logistiek gebied bewust kalm en helder gehouden. We hebben gekozen voor doorschijnende typologieën, zowel gericht op het centrale park als op de zonzijde aan de achterzijde. Hier zijn ook de appartementen toegankelijk voor verbrede galerijen met balkons. Deze balkons aan de zuidzijde zijn groot en hebben daardoor een prettige woonkwaliteit en zijn daarmee een meerwaarde voor de buurt achter het gebouw. Deze buitenruimtes zijn opgetild waardoor men uitkijkt over de geparkeerde auto’s. Het appartementengebouw Vlasakkers telt 3 verdiepingen.
Opdrachtgever
- WoonFriesland
Locatie
- Drachten
Realisatie
- 2010
Fotograaf
- Achterbosch Architecten






