Wannee
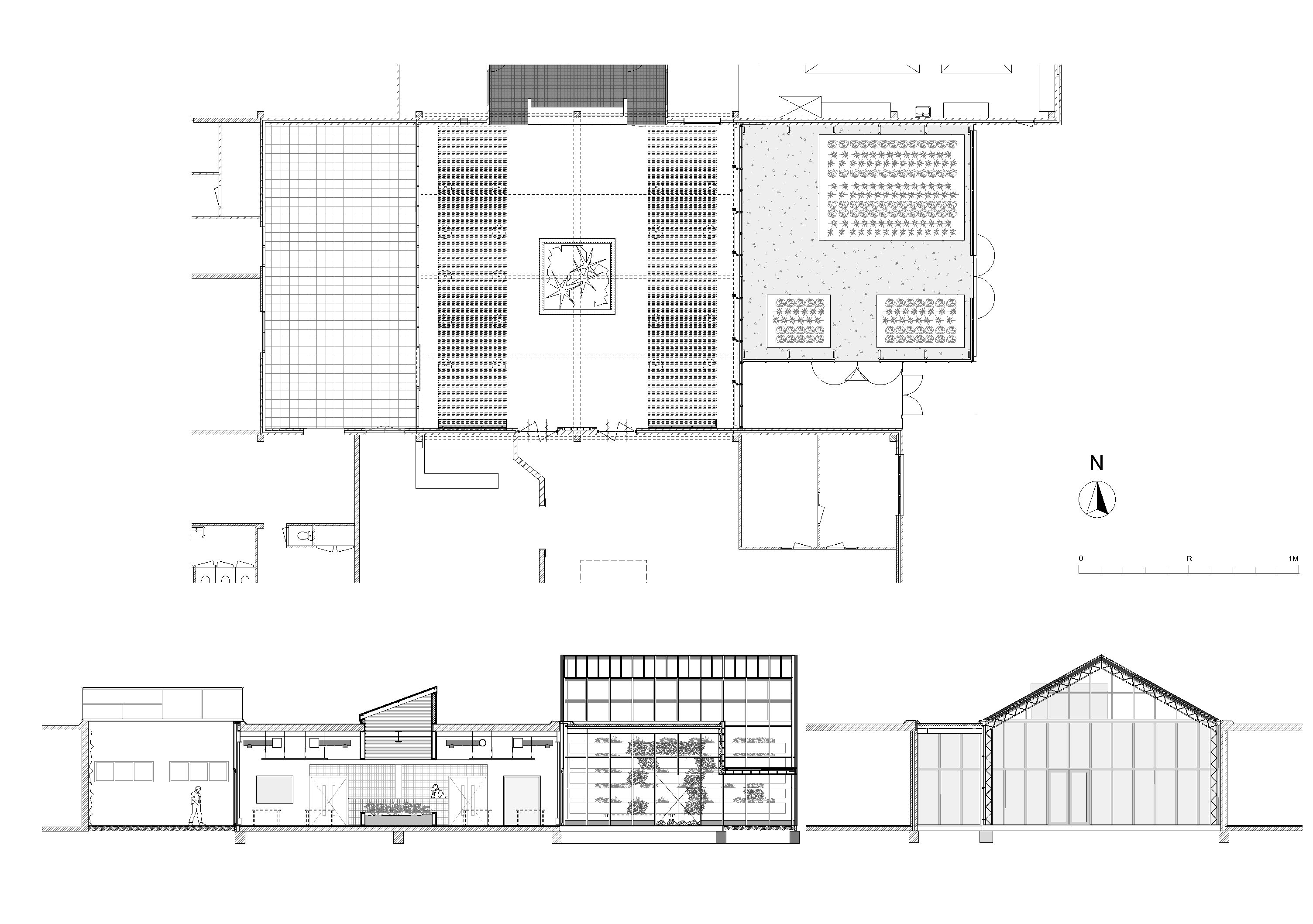
Het concept van het restaurant komt voort uit de chef-kok van het restaurant, Robert (ook professor in de keuken aan Stenden University), zijn eigen begrip en ervaring van eten en gerechten. Chef-kok Robert pleit voor het gebruik van groene en biologische ingrediënten en verhoogt het aandeel groenten in de gerechten aanzienlijk, terwijl hij de specerijen verzwakt, hoopt hij dat de gasten de smaak van de ingrediënten zelf kunnen proeven. Daarom heeft de ontwerper het concept van groene ecologie benadrukt in het ontwerp. Het hele restaurant is vitaal en overal in het restaurant zijn groene potplanten van verschillende groottes te zien. In het midden van het restaurant ontwierp de ontwerper een miniboerderij waar lokale ingrediënten of kruiden kunnen worden verbouwd.
Bij de keuze van designmaterialen hoopt de ontwerper een natuurlijke en eenvoudige sfeer over te brengen. Gebruik natuurlijke decoratieve materialen om elkaar te laten weergalmen met een overvloed aan groene planten. Bij de keuze van meubels kiezen ontwerpers ook voor een eenvoudig en eenvoudig ontwerp, dat een aanvulling vormt op de natuurlijke ontwerpstijl van het interieur.
Samenwerking
- Christien Starkenburg
Opdrachtgever
- NHL Stenden Hogeschool Leeuwarden
Locatie
- Leeuwarden
Realisatie
- 2017









