Woning aan de Ee I
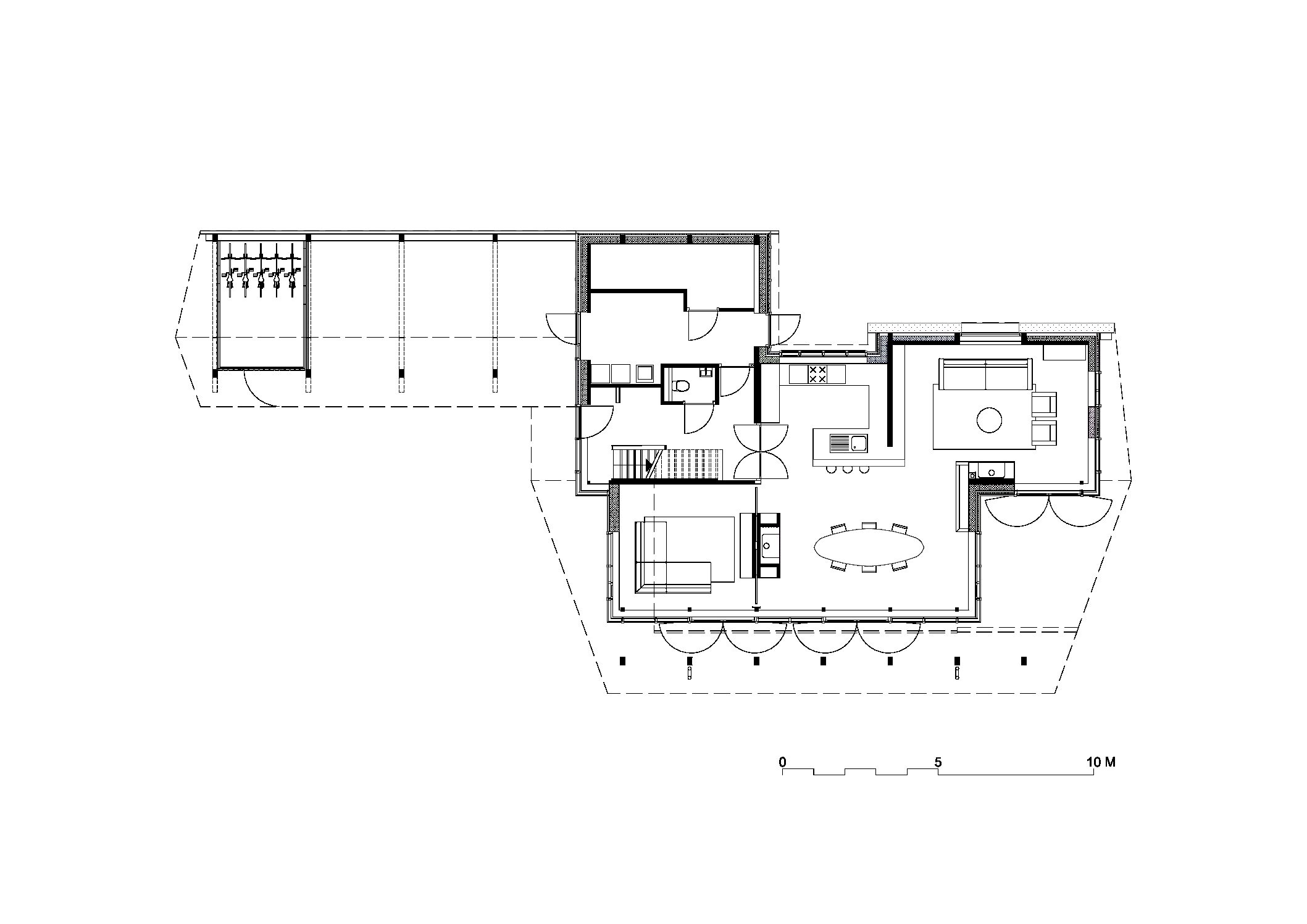
Deze woning is een uniek en locatie specifiek ontwerp, dat zich laat inspireren door de klassieke Friese boerderijen. De woning vormt een perfecte balans tussen de prachtige omgeving, de lokale, duurzame materialen en de wensen van de opdrachtgever. Het project toont bovendien een hoge ambitie op het gebied van energie en ecologie, zonder dat daarbij het budget uit het oog verloren wordt.
De duurzaamheid en de biobased aspecten van de woning komt duidelijk tot uiting in de zorgvuldig gekozen materialen die allemaal lokaal geproduceerd zijn door vakkundige bedrijven. Zo wordt er gebruik gemaakt van Fries riet en inlands eiken voor de vloeren en trappen. Ook de details zijn tot in de perfectie uitgewerkt: verholen goten, verdiept liggende PV panelen in het houten dakvlak en riet als ‘deken’ van het peil op het noorden tot in het schuine dakvlak op het zuiden.
De zuidzijde van de woning is open en biedt een prachtig uitzicht op de omgeving. De veranda op het zuiden zorgt voor een natuurlijke koeling in de zomer en biedt schaduw. Het vele glas aan deze zijde zorgt bovendien voor een optimale benutting van zonnewarmte in de winter. Aan de noordzijde van de woning is gezorgd voor privacy en rust, terwijl de tuinen rondom de woning sober en zorgvuldig zijn vormgegeven, passend bij de architectuur van de woning.
Al met al is dit een prachtige en duurzame woning waarin alle details tot in de perfectie zijn uitgewerkt. Een ode aan de Friese boerderijen, maar dan wel in een modern jasje.
Opdrachtgever
- Particulier
Locatie
- De Ee, Leeuwarden
Realisatie
- 2017
Fotograaf
- Ronald Zijlstra















