Woning Borchlaan
In het Drents-Groningse merengebied, op een kruispunt van stad en land, is een nieuw woongebied verrezen: Ter Borch. Onderdeel hiervan is de groene laan tussen Groningen en Eelde die ingeklemd is tussen het eeuwenoude stroomdal van het Eelderdiep, in het natuurgebied de Peizer- en Eeldermaden, en de Piccardhofplas. Aan dit ‘groene lint’ staan van oudsher kleine boerenbedrijven waartussen het prachtige open veenlandschap goed zichtbaar is vanaf de rijweg. Deze gebieden worden nu deels opnieuw ingevuld met nieuwe woningen.
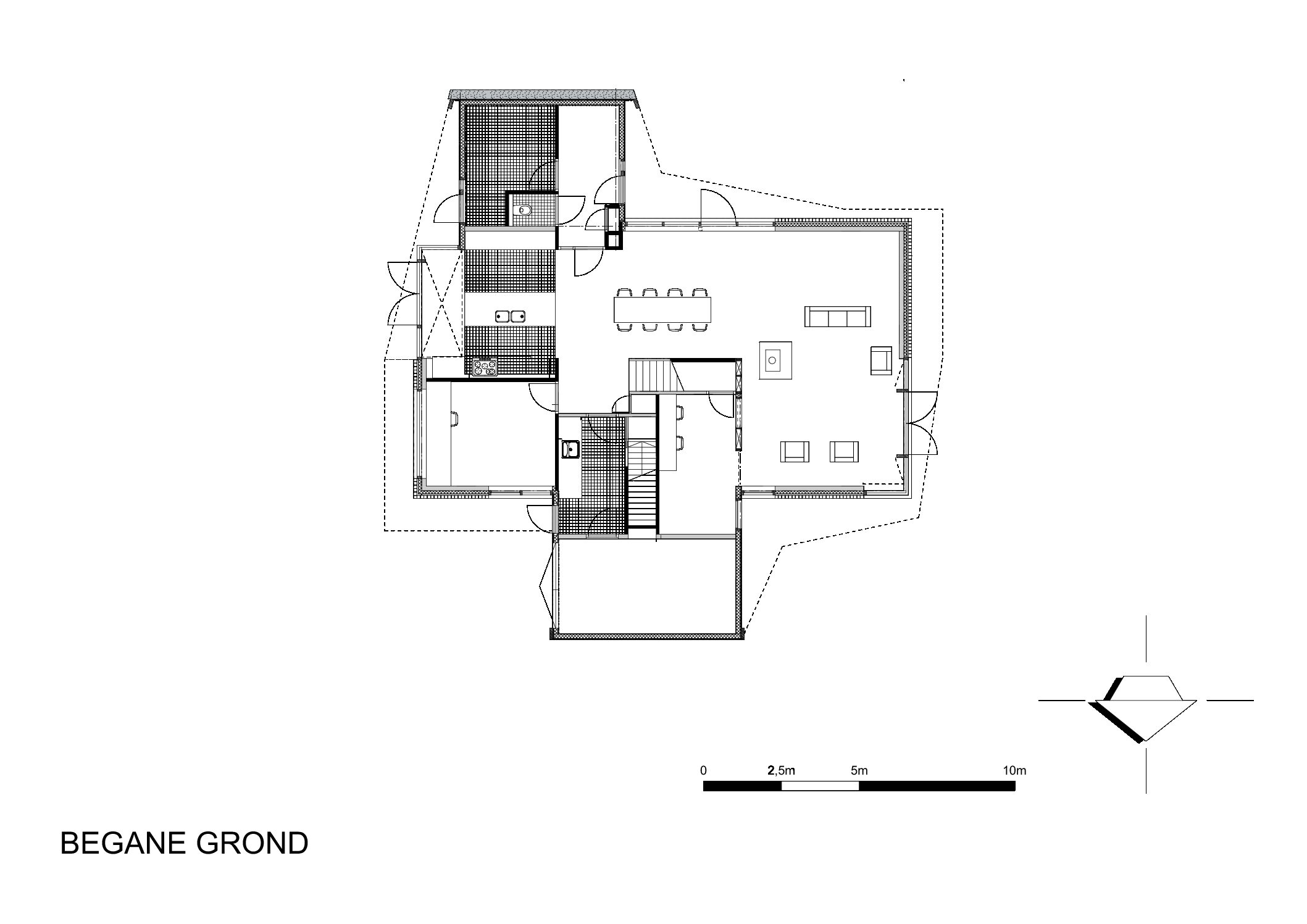
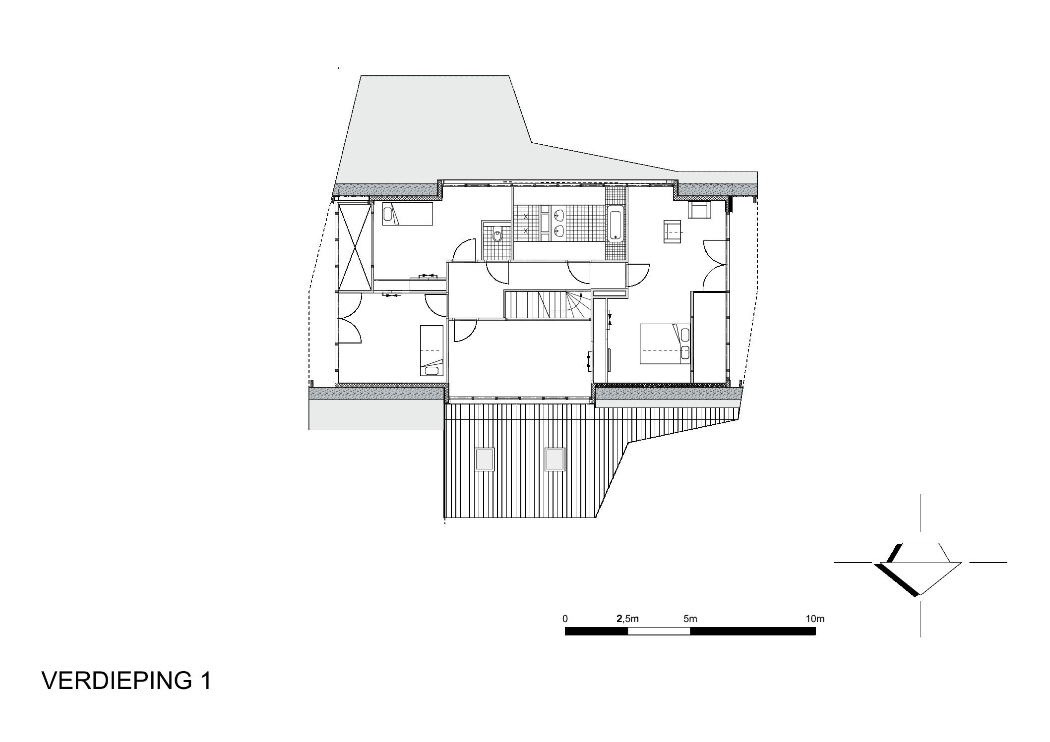
Deze villa ligt in zo’n tussenzone, iets verscholen achter een bestaande woning, tegen de rietranden van de Piccardhofplas. Het plan is zo vanzelfsprekend mogelijk ingepast in deze karakteristieke landschappelijke omgeving. De woning zelf is daardoor als rieten schuur ontworpen en de gevels zijn voor het grootste deel bekleed met onbehandelde houten delen. Het basisprincipe van het plan is een rechthoekige plattegrond met een grote woonkamer en leefkeuken beneden en verschillende slaapkamers op de verdieping. De hoofdentree met fietsenberging en de achteringang met garage zijn uit het volume ‘geschoven’ waarbij we de rieten kap hebben opgerekt, zodat ze dominanter wordt, richting benadrukt en het landschap versterkt.
De woning is Oost-West georiënteerd, op de Ter Borchlaan en de Piccardhofplas, met aan beide kopgevels gevelopeningen die als grote gebaren van begane grondvloer tot aan de nok lopen. Achter deze hoge puien bevinden zich vides, die het interieur licht en ruimtelijk maken. Het interieur is strak en modern en steekt mooi af tegen de landschappelijke buitenzijde van de woning, die overal zichtbaar en voelbaar is door grote glasstroken.
Het goudkleurige riet en de red-cedar delen hebben qua kleur dezelfde uitstraling. Langzamerhand zullen deze materialen gaan vergrijzen waardoor de woning zich meer en meer naar de natuur gaat vormen. De geelgrijze baksteen past hier bij. De woning gaat steeds meer naar zijn omgeving kleuren, als een schuur in het landschap. Het doel hiervan is de doorkijk vanuit de Ter Borchlaan naar het landelijke achtergebied zoveel mogelijk te respecteren, zodat het karakter van deze laan zoveel mogelijk behouden blijft.
Opdrachtgever
- Particulier
Locatie
- Ter Borch, Groningen
Realisatie
- 2009
Fotograaf
- Peter van der Knoop





