Woning Liespôle
Op een werkelijk zeldzaam fraaie plek grenzend aan de Liespôle hebben wij een geheel biobased woning ontworpen en gebouwd van CLT, (Cross Laminated Timber). Dit meerlaagse hout biedt unieke mogelijkheden als het gaat om ontwerpvrijheid en geeft de woning een unieke uitstraling. CLT is op dit moment een van de meest biobased constructiematerialen voor gevels en daken die in de bouw beschikbaar en leverbaar zijn.
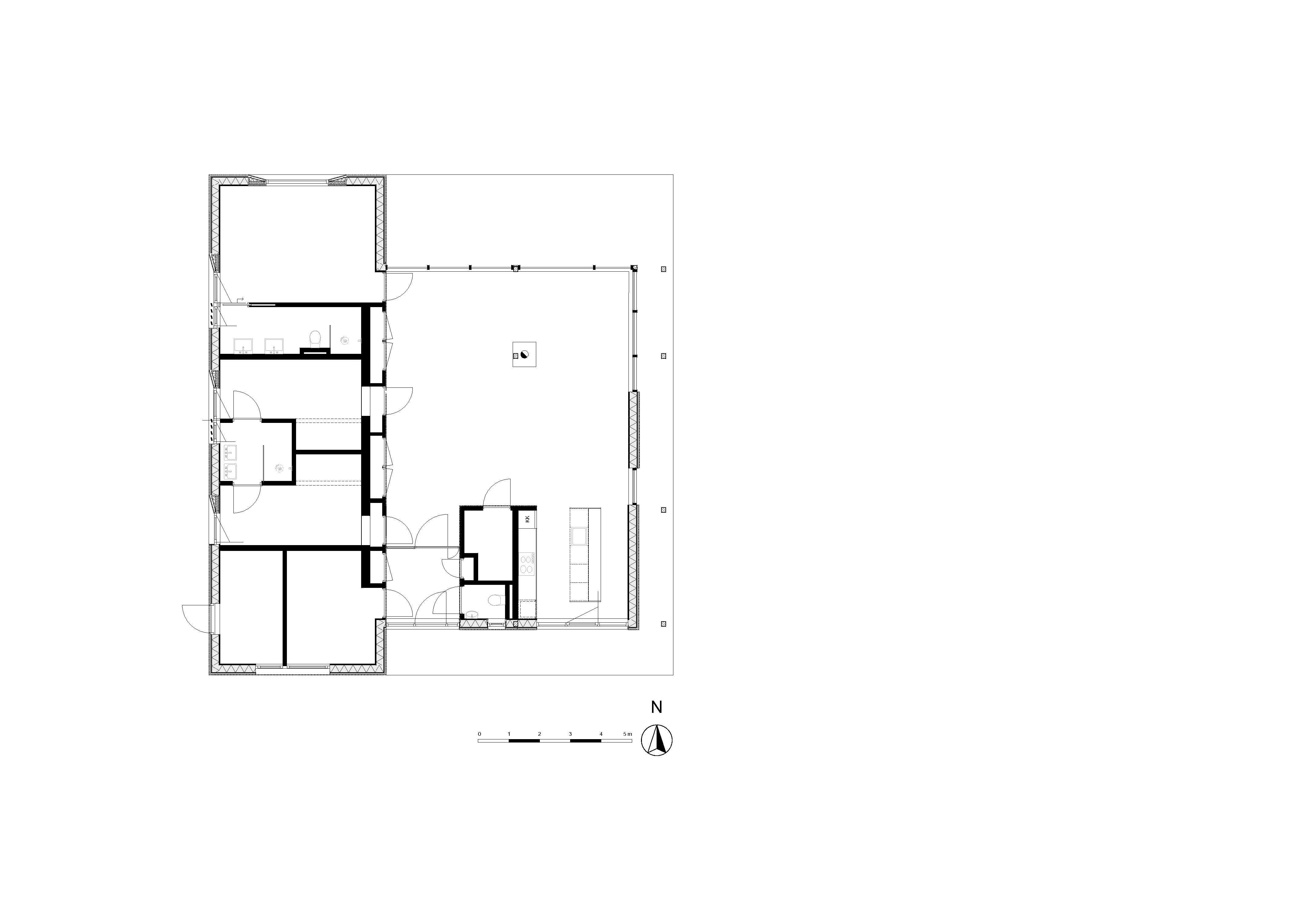
De woning is rondom de keuken en woonkamer ‘gevouwen’ in slechts 1 bouwlaag. De woonkamer is geheel opengewerkt richting het noordoosten, terwijl juist aan zuidwestzijde de slaapkamers, de badkamer en een werkruimte zijn gesitueerd, en de gevels meer gesloten zijn. De plattegrond draagt daardoor zorg voor openheid naar het koele noorden en oosten, en een geslotenheid naar het warme zuidwesten, en regeert daarmee op de omgeving die van grote invloed is op het klimaat in de woning. De installaties voor de woning zijn daardoor ook minimaal. De woning is energie neutraal.
Het schuin oplopende dak is van CLT en voorzien van een groot daklicht om in het hart van de woning voldoende daglicht te bieden. De gevels zijn voorzien van verticale houten delen, en veranderen van kleur mee met het ontwerp.
Het interieur is in balans met de omgeving en het ontwerp van de woning in goed overleg met de opdrachtgever tot stand gekomen, en daarmee zorgvuldig afgestemd op het concept van de woning. De fraaie houten veranda rondom verankerd de woning met de locatie en doet deze als bijna vanzelfsprekend versmelten met de locatie aan de Liespôle.
Opdrachtgever
- Particulier
Locatie
- Leeuwarden, Friesland
Realisatie
- 2019
Tuin
- Michel van Kammen
Fotograaf
- Ruben van Vliet









