Woning Woelwijk
Aan de rand van een golfbaan en ingesloten tussen het natuurgebied de Groene ster en het Friese dorp Tytsjerk is deze unieke woning gelegen. De vorm van de woning past zich aan, aan de plek, en de gevel ‘vouwt’ zich terug daar waar gewenst; enerzijds vanuit het verlangen naar een verbeterd uitzicht, anderzijds voor het creëren van een schaduwrijke plek of juist een rustige plek voor een eettafel op de veranda. De woning versmelt in die zin daardoor sterk met de prachtige locatie en maakt de vorm uniek. De woning is nagenoeg geheel opgetrokken uit biobased materialen.
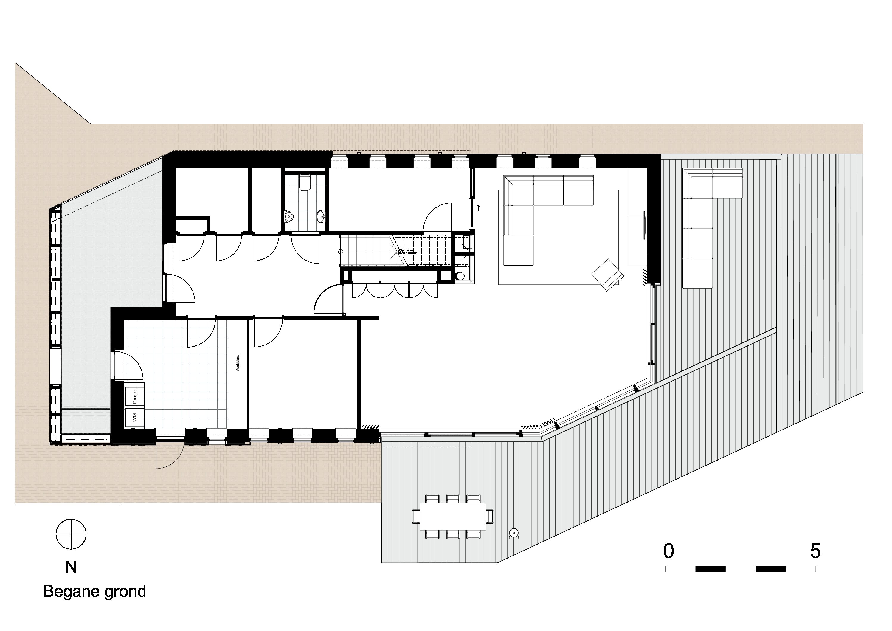
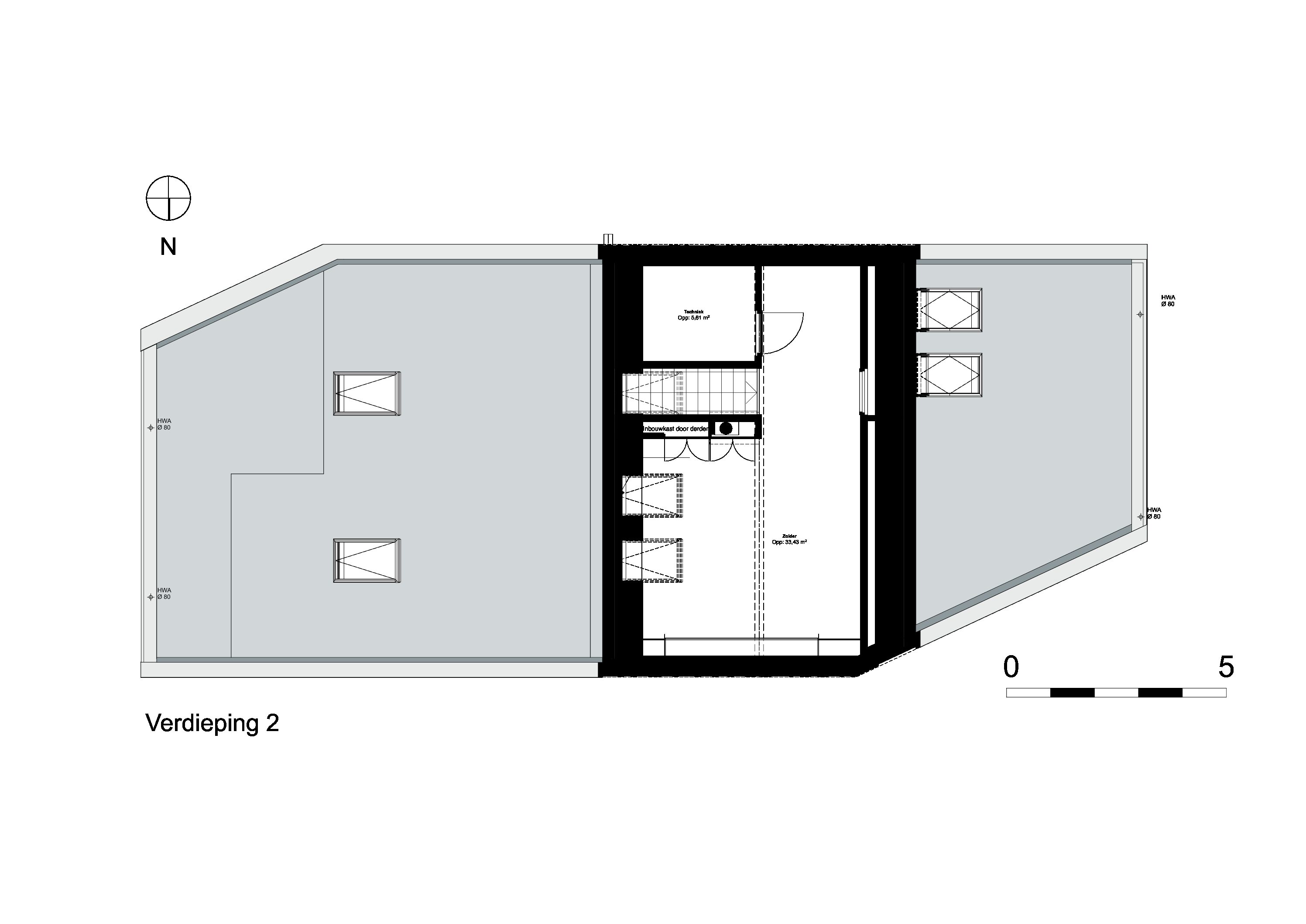
De begane grond is aan de oostzijde nagenoeg geheel opengewerkt en biedt een fantastisch zicht op de golfbaan en het bos van Ype in de verte. Juist naar de openbare weg is de woning meer gesloten om de privacy te waarborgen. De typisch kapvorm beweegt mee met het functionele interieur met een sterk oog voor duurzaamheid en circulair materiaal gebruik.
Samenwerking
- Sigrid Medema
Opdrachtgever
- Particulier
Locatie
- Leeuwarden, Friesland
Realisatie
- 2019
Fotograaf
- Ronald Zijlstra










