Eelân
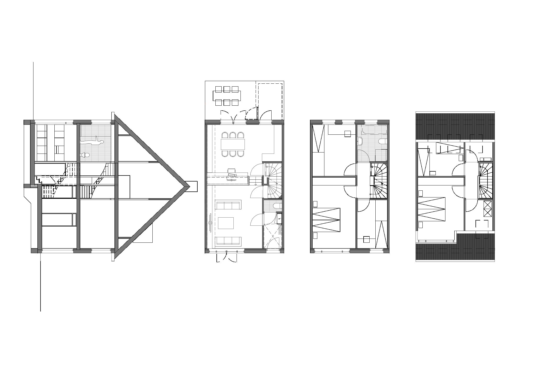
In de naoorlogse stempelwijk Bilgaard moet een nieuwe woonbuurt verschijnen die een sterkere relatie aangaat met de groen-blauwe rand van de Dokkumer Ee. Deze buurt is ontworpen in het wigvormige overgangsgebied tussen wijk en openbaar groen, dat stedenbouwkundig gezien nooit echt aansluiting heeft gevonden bij de strenge stempelstructuur. Het idee is om de te bepalende stempelstructuur te negeren, en juist de natuurlijke waarden het gebied in te brengen. De natuur vormt nu een parkachtige long waaraan gewoond kan worden.
De stedenbouwkundige opzet gaat uit van het maken van ruimtelijke overgangen op verschillende niveaus: tussen wijk en rivier, tussen bestaande wijk en nieuwe buurt, tussen buurt en straat, tussen straat en tuin en tussen binnen en buiten, op woningniveau. Hiermee wijken we af van de anonieme woonblokken in de wijk, die voor een groot deel met de achterzijdes naar de straat georiënteerd zijn. De buurt is ontwikkeld vanuit de gedachte om vriendelijke, herkenbare en gewaardeerde beeldtaal te gebruiken. Om daaraan te beantwoorden was het logisch om de traditionalistische en expressieve architectuur van de jaren 20 en 30 in te zetten, zonder letterlijk te kopiëren. De woningen zijn deels voor de huurmarkt en deels als koopwoningen ontworpen. Achterbosch Architecten heeft dit plan in samenwerking met TWA architecten ontworpen.
Samenwerking
- TWA architecten
Opdrachtgever
- Frisoplan
Locatie
- Leeuwarden
Realisatie
- 2016
Fotograaf
- Gerard van Beek




